Пластиковый погреб для дачи Kellari 2 от российской компании Коло Веси — базовая модель широкой линейки популярных погребов Kellari с 6 полками для хранения урожая и 1 винной стойкой на 38 бутылок вина. По габаритам винный погреб Kellari 2 схож с кессоном Korsu 3, имеет в комплектации вентиляционные каналы и освещение с внешним блоком питания на 12 В, позволяет выполнять функционал и кессона, и погреба.
Полностью готовый к эксплуатации погреб изготовлен из износоустойчивого чешского гомогенного полипропилена, который не подвергается гниению и окислению. В отличие от металлического и бетонного погреба, пластиковый погреб не течет, не ржавеет и не требует дополнительного гидроизолирования.
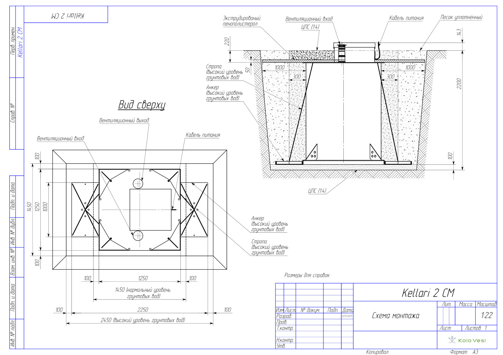
Цилиндрическая форма погребов Kellari наделяет их особой прочностью в отличие от прямоугольных резервуаров. Дополнительную прочность пластиковым погребам Kellari придаёт конструктивная особенность формы и крепления полок.
Мощное дно погребов Kellari квадратной формы, выступающие углы которого выполняют роль грунтозацепов, усилено рёбрами жёсткости и надёжно сварено с корпусом в монолитную ёмкость. Соединение корпуса и днища погреба дополняют специально приваренные косынки по углам. Для монтажа погреба в сложных условиях — на участках с высоким уровнем грунтовых вод, плывунах, на слабых грунтах (например, торфяниках) рекомендуем использовать анкерные плиты в качестве дополнительных грунтозацепов.
По Вашему желанию мы можем поставить Вам погреб Kellari 2 в белом или зеленом цвете. Срок службы пластикового погреба Kellari не менее 25 лет, гарантийный срок — 5 лет.
Надёжные и функциональные пластиковые погреба Kellari из листового гомогенного полипропилена от ведущего российского производителя инженерного оборудования Kolo Vesi 